首圖.jpg

【住宅】新竹貓屋/單層

「蟲點子創意設計」擅長以獨特的線條以及空間穿透感,打破原有格局框架,增加人與人在空間中的互動,並榮獲許多國際設計獎項,為當代亞洲室內設計新秀之一。

新竹貓屋/單層

首圖 拷貝.jpg

貓與人的空間如何並存?我們打破以往隔間牆的形式,將玻璃盒子置入在空間中,形成ㄧ個空間中的空間場域,人與貓在這空間可以產生很多不預期的互動,究竟是我們看貓?還是貓看我們?

生活,好像已經被打破框架,重新帶給我們不同的想像力了。

plan.jpg
 

貓屋就像漂浮的盒子
藉由圓形鐵管當成主要支撐
當我們看貓時 也可有不一樣的互動

 
plan.jpg
補_整體概念圖.jpg

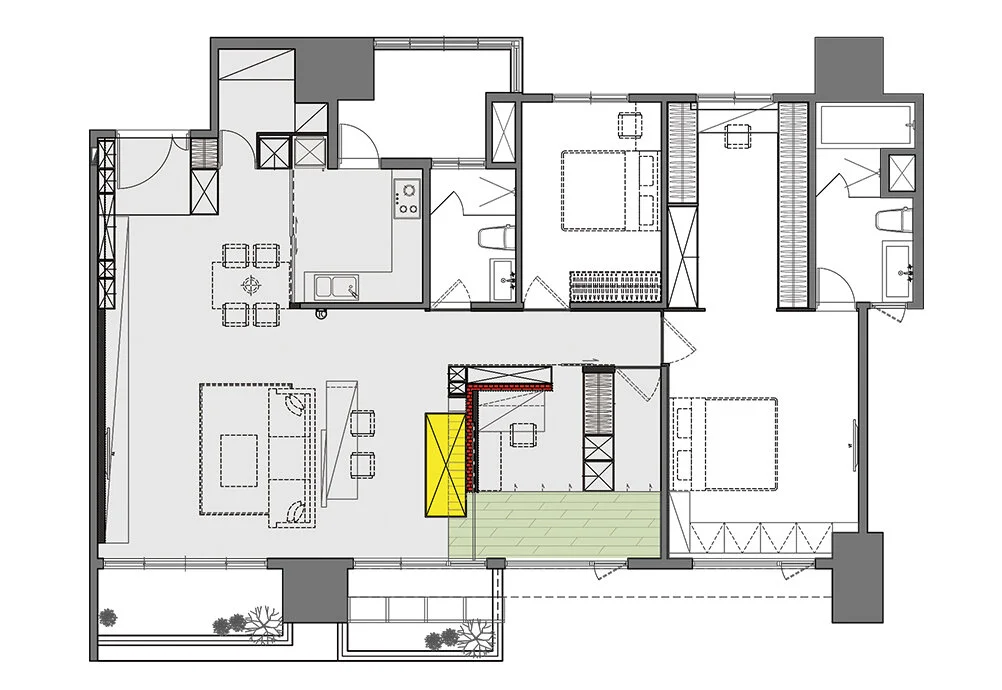
平面配置上,客廳書房為開放式,後方黃色塊體為貓屋,紅色牆面為女主人的工作空間利用一個臥榻結合貓屋;我們在空間中置入一個玻璃懸浮空間,讓層層交疊的空間也有不同的穿透感

 

懸空的貓屋量體,刻意在窗戶開個觀景平台,面對千萬高樓窗景;盒子內的天花與側邊利用實木格柵設計,透光兼具透氣效果。

design.jpg
design.jpg
design.jpg
design.jpg
design.jpg
design.jpg
design.jpg

從入口玄關櫃一路延伸至客廳櫃體,沙發後方為開放是書房,書桌側邊刻意拖開的縫,是可以走動的空間;將書房與客房的牆面打開,形成一個回字形動線,不僅是光影的場域,也變成一個生活遊戲的模糊地帶。

design.jpg
design.jpg
design.jpg
design.jpg
4 拷貝.jpg
design.jpg
design.jpg
design.jpg
design.jpg
design.jpg

主臥電視牆面單使用油漆跳色營造氣氛,左邊更衣室,使用拉簾取代固定門片。

22 拷貝.jpg
design.jpg
design.jpg
design.jpg
30.jpg
design.jpg
design.jpg